土地 仙台市太白区大野田2丁目建築条件付き土地:大野田二丁目1号棟
所在地
仙台市太白区大野田2丁目建築条件付き土地:大野田二丁目1号棟
1,990万円
33.04坪
残り1区画
JR線「太子堂駅」徒歩9分、地下鉄南北線「富沢駅」徒歩15分と2路線利用可能です。
大野田北屋敷公園 徒歩1分、大野田小学校 徒歩12分です。
「便利なアクセスと豊かな自然」 便利なアクセスと豊かな自然が両立する住宅で、快適な生活を楽しむことができます。都市の利便性と自然の豊かさを両立した理想的な住まいを建てられます。
月々の
支払例
支払例
万円
年
%
円
※提携金融機関/借入金1,990万円、返済期間35年、金利0.850%(変動金利型)の場合
※審査により金利や借入条件が変わる場合があります。
物件概要
- 交通
-
東北本線 太子堂駅 まで 徒歩9分
仙台地下鉄南北線 富沢駅 まで 徒歩15分
- 接道状況
- 南側 私道約4m 間口約約3.9m
- 土地面積
- 実測 109.23㎡ (33.04坪)
- 建ぺい率
- 60%
- 容積率
- 160%
- 土地権利
- 所有権
- セットバック
- 無し
- 小学校区
- 大野田 (900m)
- 中学校区
- 富沢 (1900m)
- 私道負担
- あり (79.00㎡)
- 建築条件
- あり
- 地目
- 宅地
- 現況
- 上物有
- 引渡時期
- 相談
- 上水道
- 公共
- 下水道
- 公共
- ガス
- 都市計画
- 市街化区域
- 用途地域
- 2種住居
- 設備・条件
- 備考
-
残り1区画です!
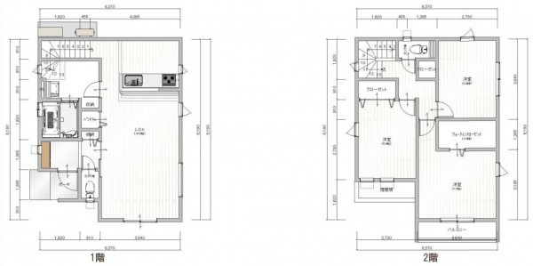
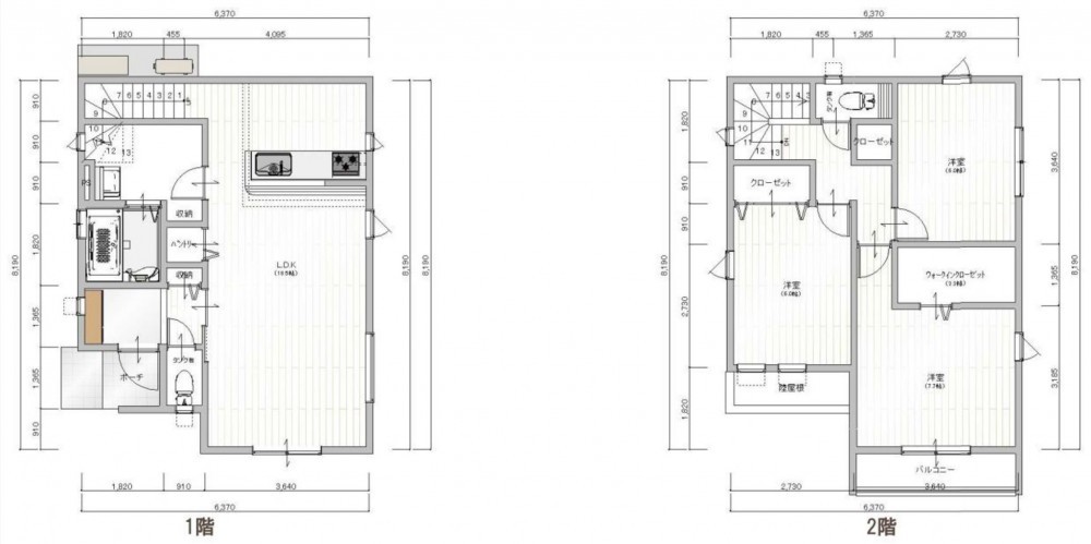
建物プランあります。建物予定価格:2,300万円(税込)
詳しくは係員にお問い合わせください。 - 取引態様
- 仲介
建築条件付きの土地につきましては、土地売買契約締結後3カ月以内に当社の指定する建設業者と請負契約が成立しない場合には土地売買契約は解除され、受領した金額は全額無利息でお返しします。
