新築一戸建て 仙台市若林区霞目2丁目霞目1期 2号棟
所在地
仙台市若林区霞目2丁目霞目1期 2号棟
3,699万円
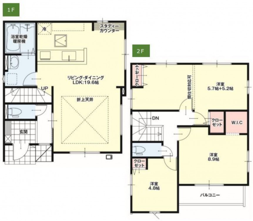
30.30坪
3LDK
「家族の絆を深める広々としたリビング」 広々としたリビングで、家族みんなが集まり、楽しい時間を過ごせる住宅です。コミュニケーションが生まれる空間で、家族の絆を深めましょう。
月々の
支払例
支払例
万円
年
%
円
※提携金融機関/借入金3,699万円、返済期間35年、金利0.850%(変動金利型)の場合
※審査により金利や借入条件が変わる場合があります。
物件概要
- 交通
-
仙台地下鉄東西線 六丁の目駅 まで 徒歩24分
- 土地面積
- 112.02㎡ (33.88坪)
- 建物面積
- 100.19㎡ (30.30坪)
- 築年数
- 2025年 (令和7) 6月
- 建ぺい率
- 60%
- 容積率
- 160%
- 土地権利
- 所有権
- 構造および階数
- 木造 地上2階建
- 小学校区
- 蒲町
- 中学校区
- 蒲町
- 私道負担
- 地目
- 宅地
- 現況
- 完成済
- 引渡時期
- 即時
- 駐車場
- 2台
- 上水道
- 公共
- 下水道
- 公共
- ガス
- 都市計画
- 市街化区域
- 用途地域
- 1種住居
- 設備・条件
- システムキッチン、カウンターキッチン、IHクッキングヒーター、オール電化、シャンプードレッサー、洗浄便座、浴室乾燥機、複層ガラス、モニタ付インターホン、駐車場2台分、床下収納、トイレ2箇所
- 備考
- 「家族の絆を深める広々としたリビング」 広々としたリビングで、家族みんなが集まり、楽しい時間を過ごせる住宅です。コミュニケーションが生まれる空間で、家族の絆を深めましょう。
- 取引態様
- 仲介
