新築一戸建て 仙台市青葉区桜ケ丘1丁目桜ケ丘1丁目 1号棟
所在地
仙台市青葉区桜ケ丘1丁目桜ケ丘1丁目 1号棟
3,480万円
31.55坪
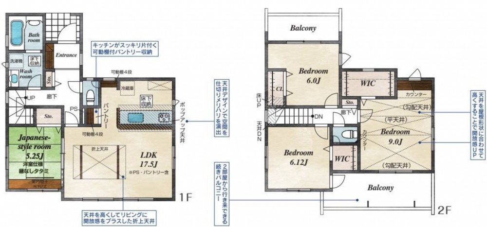
4LDK
シンプルで洗練された外観は、街並みに自然と調和しながらも個性を感じさせます。室内は明るさと素材感を大切にした設計で、毎日の暮らしを心地よく彩ります。
月々の
支払例
支払例
万円
年
%
円
※提携金融機関/借入金3,480万円、返済期間35年、金利0.850%(変動金利型)の場合
※審査により金利や借入条件が変わる場合があります。
物件概要
- 交通
-
仙台地下鉄南北線 北仙台駅 バス20分乗車 バス停桜ケ丘1丁目 まで 徒歩3分
- 土地面積
- 157.30㎡ (47.58坪)
- 建物面積
- 104.33㎡ (31.55坪)
- 築年数
- 2025年 (令和7) 12月
- 建ぺい率
- 50%
- 容積率
- 80%
- 土地権利
- 所有権
- 構造および階数
- 木造 地上2階建
- 小学校区
- 中学校区
- 私道負担
- 地目
- 宅地
- 現況
- 完成済
- 引渡時期
- 即時
- 駐車場
- 有 2台
- 上水道
- 公共
- 下水道
- 公共
- ガス
- 都市計画
- 市街化区域
- 用途地域
- 1種低層
- 設備・条件
- システムキッチン、カウンターキッチン、食器洗浄乾燥機、IHクッキングヒーター、オール電化、シャンプードレッサー、洗浄便座、浴室乾燥機、モニタ付インターホン、駐車場2台分、床下収納、エコキュート、トイレ2箇所
- 備考
- シンプルで洗練された外観は、街並みに自然と調和しながらも個性を感じさせます。室内は明るさと素材感を大切にした設計で、毎日の暮らしを心地よく彩ります。
- 取引態様
- 仲介
